Italiano
Per molti ma non per tutti...

APPARTAMENTO RISTRUTTURATO A LENZIMA, A POCHI MINUTI DA ROVERETO

160.000 €
87 m2
2 Camere
1 Bagni
Codice
V000430
Città
Isera (Lenzima)
Categoria
Appartamento
Locali
3
Box
1
Mq Box
25
Piano
1
Classe energetica
In fase di valutazione
Stato Immobile
Ristrutturato
Grado
Medio
Panorama
Vista Aperta
Orientamento
Ovest Est
Lati Liberi
2
Arredi
Arredato
Tipo Soggiorno
Soggiorno
Tipo Cucina
Angolo Cottura
Riscaldamento
Autonomo
Tipo Riscaldam.
Caldaia
Tipo Impianto
Radiatori
Fonte Energetica
Metano
Acqua Calda
Autonoma
Raffrescamento
No
Infissi
Legno Doppio Vetro
Serramenti
Buono
Persiana
Tapparella Legno
Pavim. Giorno
Laminato
Pavim. Notte
Laminato
Pavim. Cucina
Laminato
Pavim. Bagno
Gres Porcellanato
Accessori
Porta Blindata, Ripostiglio
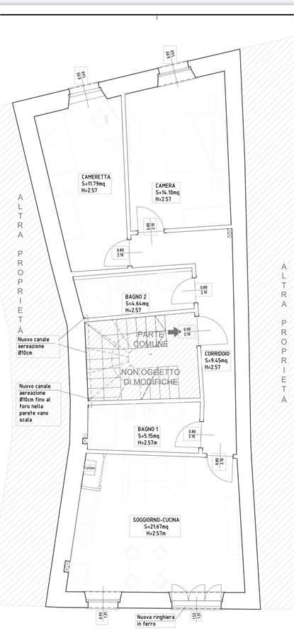
A Lenzima, a soli 10/15 minuti da Rovereto, proponiamo in vendita appartamento ristrutturato di 87 mq pronto da abitare. L’immobile si trova in una posizione tranquilla e soleggiata ed è stato oggetto di una recente ristrutturazione che ha interessato pavimenti, impianto elettrico, impianto idraulico, bagno, porte interne e porta blindata, oltre alla cucina completamente nuova.

L’abitazione si compone di un soggiorno con angolo cottura di 22 mq, due camere da letto, un bagno moderno con ampio box doccia, e un altro locale con la possibilità di realizzare facilmente un secondo bagno. Non è presente il balcone, ma a completare la proprietà troviamo un garage molto ampio di 25 mq, ideale anche come spazio di deposito.

Il riscaldamento è autonomo con caldaia recente.
Non ci sono spese condominiali, un grande vantaggio per chi desidera gestire in modo indipendente i propri consumi.
L’unico intervento da prevedere riguarda la sostituzione degli infissi, un investimento contenuto in quanto si tratta di sole quattro finestre.
Un ulteriore valore aggiunto è dato dalla possibilità di usufruire di un recupero fiscale di circa 10.000 euro, che il proprietario cede per i lavori già eseguiti.

Richiesta: € 160.000

info@studiodavinci.it - 38O 218 4O82

Mappa

PIAZZA S. MARTINO 150, Isera (TN)

Condividi

Cookie preference